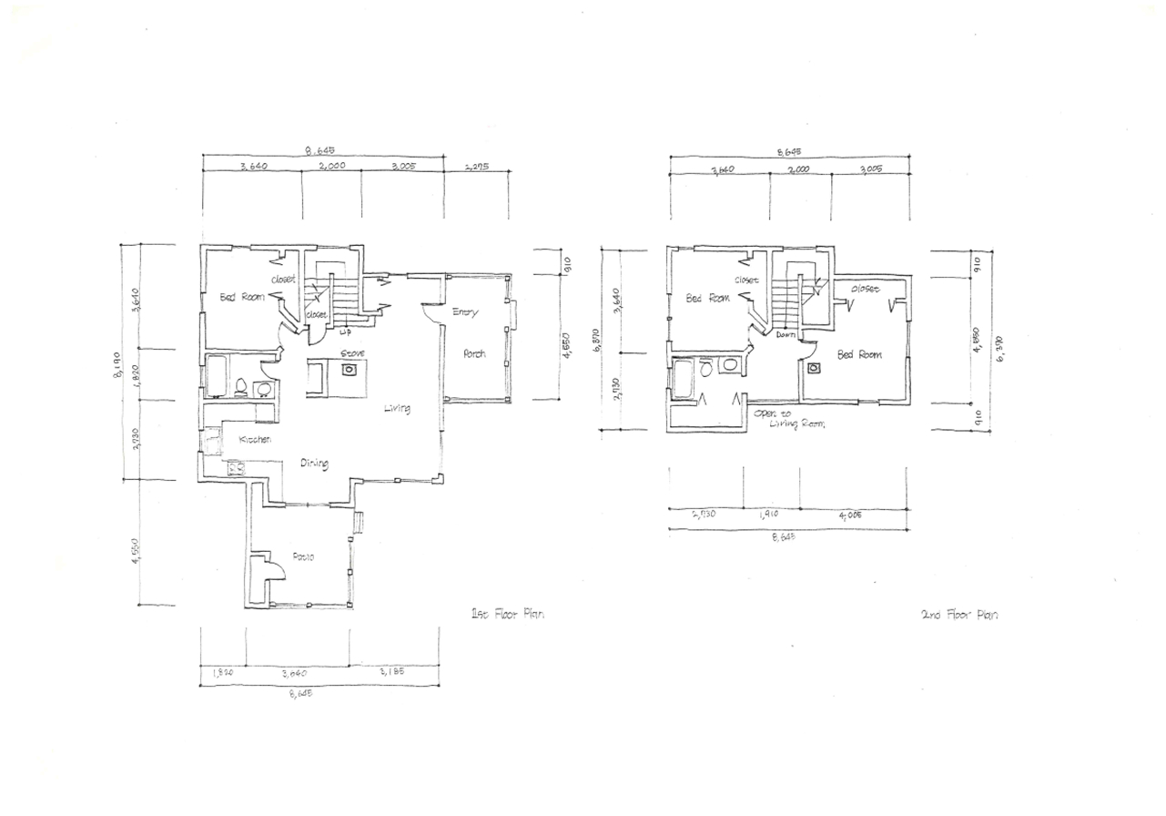
Fine American Homes
イープランの住宅建築
「Fine American Homes」
30年を経てさらに進化する
家とガレージの設計
EEplanは、お客様と二人三脚で暮らしに合った建物
をつくることを大切にしています。
「Fine American Homes」は、家とガレージの新し
い関係を提案する私たちの住宅プランです。
母屋とガレージを繋げずとも、“ガレージのある暮ら
し”を実現できます。
新築住宅と同程度の予算で、魅力ある木造ガレージ
付きの暮らしが手に入ります。
将来もこのスタイルで暮らしたいと思えるような住
まいを、私たちと一緒につくりませんか?











